Продажа помещения свободного назначения

15 450 000 ₽

61 800 ₽ за м²

250 м²
Площадь
1/1
Этаж

Поделиться

Добавить в избранное



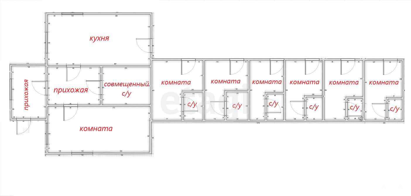
В курортном поселке Пересыпь продается дом с гостевыми номерами. Общая площадь 238 кв. м. на земельном участке 8, 63 сотки.
В доме одна спальня, кухня, прихожая, совмещенный сан. узел.
Рядом находятся шесть номеров (два утепленных можно сдавать круглогодично, и четыре номера не отапливаемые). В каждом номере совмещенный сан. узел, холодильник, кондиционер, телевизор.
Во дворе имеются парковочные места для машин. Под навесом стоят варочные панели, стол и мойка. Двор ухоженный, есть мангальная зона, посажены фруктовые деревья, молодой виноград, розы. В шаговой доступности вся инфраструктура. Показ по предварительному звонку.
Код пользователя: 190369
Номер в базе: 3280054

Дата обновления: 26 сентября 2025