Продажа помещения свободного назначения

24 000 000 ₽

18 462 ₽ за м²

1 300 м²
Площадь
1/1
Этаж

Поделиться

Добавить в избранное



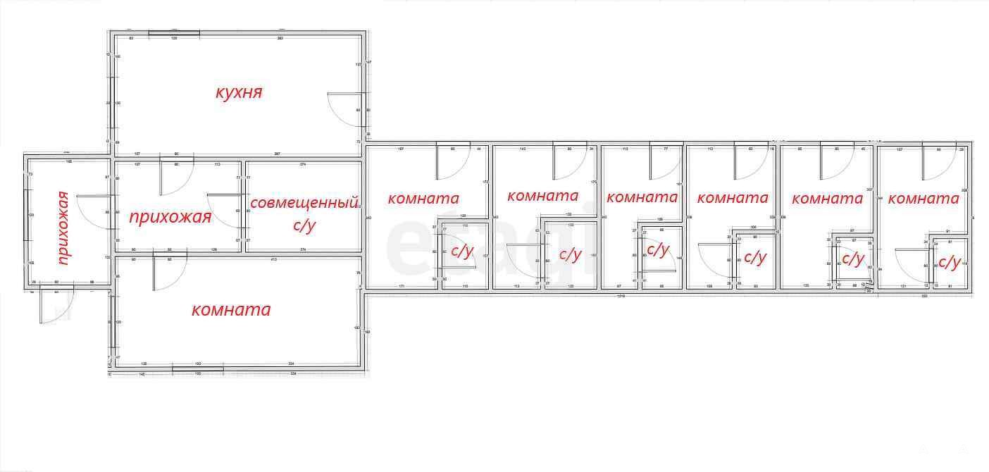
В курортном поселке Пересыпь продается дом с гостевыми номерами. Общая площадь 238 кв. м. на земельном участке 8, 63 сотки.

В доме одна спальня, кухня, прихожая, совмещенный сан. узел.
Рядом находятся шесть номеров (два утепленных можно сдавать круглогодично, и четыре номера не отапливаемые). В каждом номере совмещенный сан. узел, холодильник, кондиционер, телевизор.

Во дворе имеются парковочные места для машин. Под навесом стоят варочные панели, стол и мойка. Двор ухоженный, есть мангальная зона, посажены фруктовые деревья, молодой виноград, розы. В шаговой доступности вся инфраструктура.

Показ по предварительному звонку.
Код пользователя: 197948
Номер в базе: 3280054

Дата обновления: 15 апреля 2026