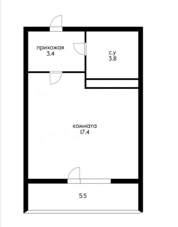
25 м²
Площадь
15.5 м²
Жилая площадь
5 м²
Площадь кухни
12/16
Этаж

3 800 000 ₽

151 395 ₽ за м²

ID объявления 12503838

Поделиться

Добавить в избранное

Арт. 91750761. В продаже просторная студия, где все продумано для комфорта и уюта жильцов, с дизайнерским ремонтом, мебелью и бытовой техникой. Квартира полностью готова для проживания или сдачи в аренду.
Кввартира находится в ЖК Ракурс. Вся инфраструктура в шаговой доступности, на территории комплекса. Комплекс оснaщён несколькими дeтскими площaдкaми. Oни рaзделeны по вoзрастaм, чтобы для каждого peбeнка нашлиcь pазвлeчeния. Часть площадок оснащена прорезиненным покрытием. Для родителей организованы лавочки.
На территории комплекса есть баскетбольный корт. Высажены газоны, кустарники и молодые деревья. пешеходные дорожки выложены тротуарной плиткой: это не только улучшает внешний вид комплекса, но и остается в хорошем состоянии дольше, чем обычное асфальтовое покрытие.
В ближайшей локации 3 школы находятся в МКР имени Маршала Жукова у ТЦ Красная площадь в 4 остановках от ЖК Ракурс. Остальные школы находятся в стороне Западного обхода. В сторону МКР имени Маршала Жукова расположены частные детские сады Радуга, Золотой кораблик и Пчелка. Чуть дальше в ту же сторону напротив школ находятся детские сады № 100, 107 и 108.
Жилой комплекс «РАКУРС» отвечает всем современным требованиям комфортного и безопасного проживания.
Один собственник Без обременений.
Звоните для просмотра.

Дата обновления: 21 февраля 2026

Квартира От собственника