Продажа торговой площади

21 642 500 ₽

275 000 ₽ за м²

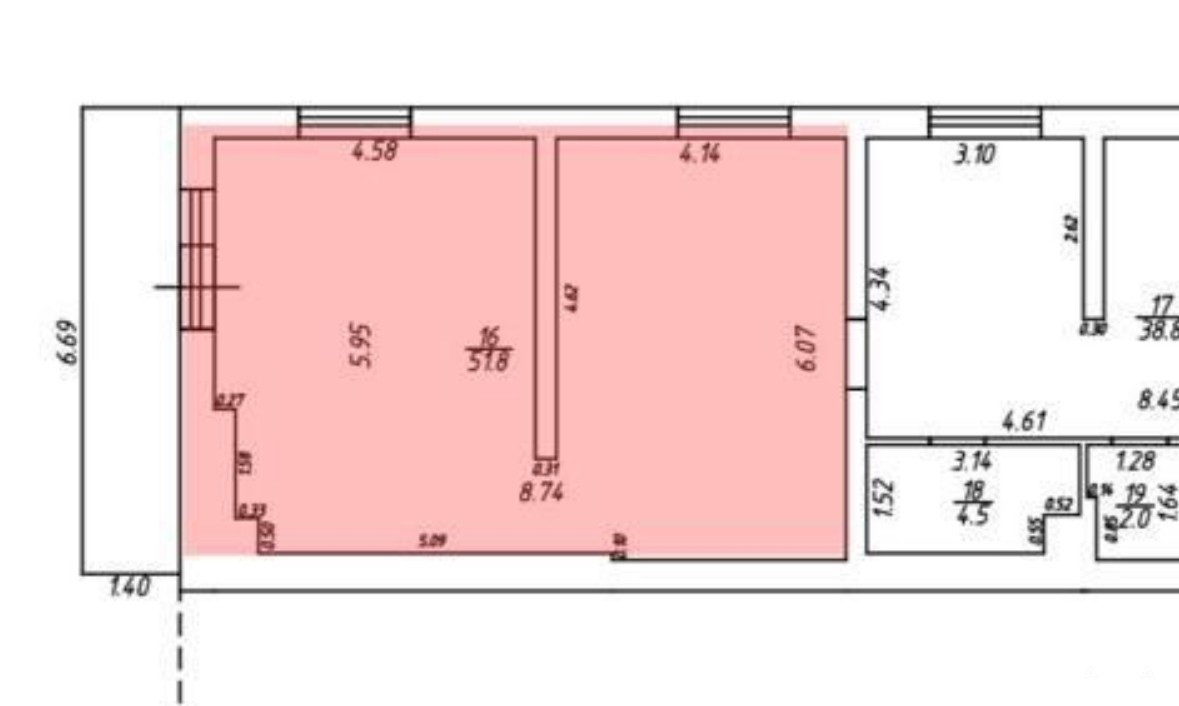
79 м²
Площадь

Поделиться

Добавить в избранное

В продаже коммерческое помещение на 1 этаже многоквартирного дома в ЖК Элегант.

Помещение расположено внутри жилого комплекса на закрытой территории.

Дом сдан.



Об объекте:

Площадь 78.7 м2

Угловое, фасадное

Большие витражные окна

Входная группа без ступеней

Коммуникации центральные



В состав жилого комплекса Элегант вошли 10 жилых корпусов и подземный паркинг, рассчитанный на 574 машиномест. На первых этажах коммерческие помещения, предпоследние этажи технические, а последние этажи занимают пентхаусы с террасами.



Непосредственно около комплекса, в пяти минутах пешком работают крупные торговые центры: Медиа Плаза, Меридиан, Галактика, гипермаркет Окей. За десять минут можно дойти до гипермаркетов Ашан, Леруа Мерлен и ТРЦ СБС Мегамолл.

Рядом с комплексом: детские сады, центр развития ребенка, средние школы. Недалеко находятся медицинские учреждения, КУбГУ, поликлиника и больница, спорткомплексы, досуговые центры, зоны отдыха.



За подробной информацией обращайтесь по номеру телефона указанному в объявлении.



Без комиссионного вознаграждения со стороны покупателя!



Выбирая сотрудничество с АН Девелопмент-Юг, Вы получаете:

- каталог коммерческих помещений в новостройках и новых жилых комплексах от наших партнёров

Актуальные и свежие предложения на рынке недвижимости

Доступ к эксклюзивным объектам, представленным только у нас

- Чистоту сделки и отсутствие рисков

- Комплекс услуг по покупке, аренде, продаже и сдаче коммерческой недвижимости





Арт. 82862255

Дата обновления: 28 сентября 2025