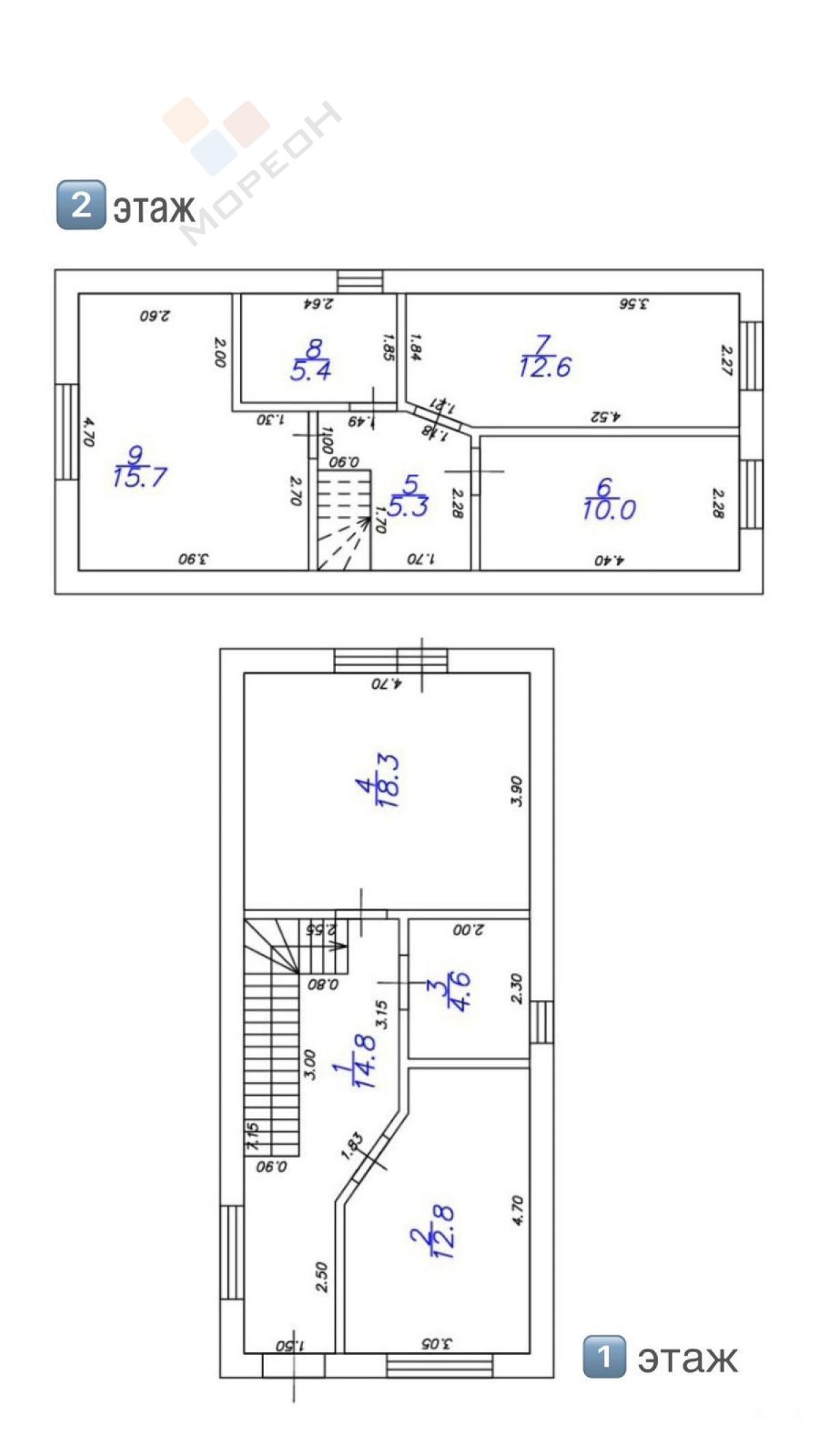
100 м²
Площадь
70.00 м²
Жилая площадь
20.00 м²
Площадь кухни
2
Этажность
4 сот
Площадь участка

9 200 000 ₽

92 000 ₽ за м²

ID объявления 11453401

Поделиться

Добавить в избранное

ОТЛИЧНЫЙ НОВЫЙ ДОМ!ЦЕНА ДО КОНЦА МЕСЯЦА!​​​​​​​Строится с соблюдением всех технологий строительства согласно ГОСТ и СНИП . Есть фото и видеофиксация этапов стройки.Двор забетонирован, забор из профлиста с воротами. Несколько машино мест перед домом во дворе.Отличная планировка!​​​​​​​Правильная посадка дома!​​​​​​​​​​​​Хорошие подъездные пути!О ДОМЕ:​​​​​​​Строительство выполнено согласно ГОСТ и СНИП!​​​​​​​Электричество разведено по домуВодоснабжение скважинаКанализация септик ​​​​​​​​​​​​​Качественная отделка! ​​​​​​​​​​​​Удачное локальное расположение объекта!Район активно развивается!​​​​​​​​​​​​​Вся инфраструктура в ближайшей доступности!​​​​​​​ПРОДАЖА ЭТОГО ОБЪЕКТА БЕЗ КОМИССИИ СО СТОРОНЫ ПОКУПАТЕЛЯ!Пишите или звоните по любым интересующим вас вопросам!​​​​​​​​​​​​​Поставьте этому объявлению ❤️, чтобы не потерять!Номер объекта: #5/1662354/3069

Дата обновления: 26 сентября 2025